重厚で、軽やか。大人のための平屋
グリーンタウン芸術の森の平屋モデルハウス
[NEW]
| モデルハウス名 | Bron ブロン |
|---|---|
| 所在地 | 札幌市南区常盤6条2丁目103-101(№67) |
| 販売価格(税込) | 3,190万円 |
| 毎月のお支払い例 | 月々48,803円 ■借入金額3,140万円、頭金50万円の場合 |
- ダブル断熱
- 床暖房
- トリプルガラス
モデルハウス見学予約
当日の見学希望は担当者確保のため、お電話からのみご予約が可能です。
営業時間/9:00 ~18:00 休業日/水曜日、木曜日、2026年5月12日(火)
モデルハウスの資料がほしい方はこちら
Photo
ピックアップ写真紹介
Point
ポイント
≪整った美しい街並みが魅力のニュータウン≫
・駐車2台可能
・人口密度が低く、静かな環境が魅力
・緑豊かな場所で、四季を感じながらのびのびと暮らせる
≪笑顔がつながる、ひとつの空間≫
・18.5帖の広々LDK
・水回りが一直線の間取りなので家事の効率向上
・帰ってすぐ手が洗える“ただいま動線”で、家の中をいつも清潔に
・1階全面&玄関は床暖房
仕様・設備
-
温水ガス床暖房まるで陽だまりのような温かさで、足元からじんわりと温めてくれる床暖房。風当たりがない為、ほこりが舞ったり乾燥もしにくいメリットがあります。また、暖房器具を置かなくて済むので、お掃除の手間が省け、更に室内は自由に広々使えて快適です。 -
ダブル断熱(ネオマフォーム30mm)通常の充填断熱にプラスして、外張り断熱を組み合わせた『ダブル断熱』。 外張り用の断熱材は、業界トップクラスを誇る熱伝導率が0.020W/(m・K)のネオマフォームを採用しています。 ダブル断熱にする事で夏の暑さも冬の寒さも影響を受けにくく、光熱費の節約にも繋がります。 -
省エネ性・快適性を向上した高断熱玄関ドア『グランデル2』熱の伝わりを遮断するサーマルブレイク構造を上枠と縦枠に使用した高断熱玄関ドア。優れた断熱効果を発揮する高機能ガラスや、扉内部の断熱材の量をアップすることで、圧倒的な断熱性能を実現。 -
世界トップクラスの断熱性能!『トリプルガラス』高性能トリプルガラス窓を採用。 ペアガラスに比べ年間暖房費を約2万円節約出来ます。 -
ミーレ製ビルトイン食洗機SNSで話題の、ミーレ製ビルトイン食洗機を採用。 最適な洗浄と乾燥の仕上がりを、非常に少ない電気と水の消費で実現します。自動投入量センサーが水の消費を調整、食器洗い機がいっぱいになっていないときでも罪悪感なく使うことができます。 -
省エネ型ガス給湯器『ノーリツ製エコジョーズ』従来の排気熱再利用して給湯熱効率を約95%に高めた省エネガス給湯器です。少ないガス量でお湯を沸かすため、年間約1万円以上のガス代削減が見込めるほか、CO2排出量も約13~17%削減できる環境に優しい製品です。 -
シアトル産レンガシアトルから直輸入した高品質な焼きレンガで外観を装飾。本物ならではの美しい風合いが特徴で、住まいに風格と優雅さを演出します。雨水や雪、紫外線に強く、劣化が少ないメンテナンスフリー素材で、美しい外観を永く保つ事が出来ます。
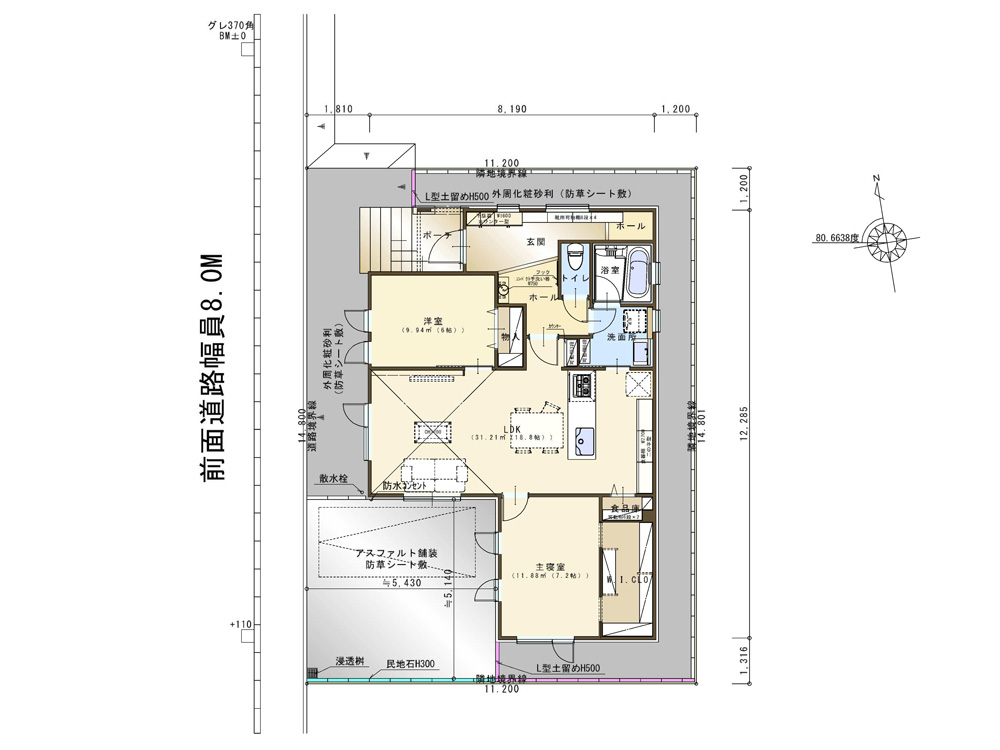
面積・間取り
マップ・アクセス
所在地:
札幌市南区常盤6条2丁目103-101(区画 №67)
交通機関:
中央バス「常盤6条2丁目」停 徒歩7分、バス乗車16分…地下鉄南北線「真駒内」駅
地下鉄南北線「真駒内」駅 車14分
中央バス「常盤6条2丁目」停 徒歩7分、バス乗車16分…地下鉄南北線「真駒内」駅
地下鉄南北線「真駒内」駅 車14分
周辺環境
※ グリーンタウン芸術の森の土地情報はこちら
→【常盤6条2丁目の土地情報】
-
周辺マップ中央バス「常盤6条2丁目」停 徒歩7分…バス乗車16分 地下鉄南北線「真駒内」駅
-
セイコーマート しばはら店徒歩9分(650m)
-
セブン-イレブン 札幌常盤4条店徒歩15分(1,200m)
-
ファミリーマート 札幌常盤3条店徒歩19分(1,500m)
-
ラルズマート 石山店車7分(3,600m)
-
ザ・ビッグ 石山店車12分(6,000m)
-
ツルハドラッグ 石山店車12分(6,000m)
-
セリア 石山店車12分(6,000m)
-
スターバックスコーヒー 札幌石山店車12分(6,000m)
-
DCM 藤野店車13分(6,800m)
-
芸術の森郵便局徒歩18分(1,400m)
-
北洋銀行 ATM徒歩20分(1,600m)
-
常盤かけす公園徒歩4分(290m)
-
真駒内虹の緑地徒歩10分(800m)
-
札幌芸術の森徒歩15分(1,200m)
-
国営滝野すずらん丘陵公園車7分(4,600m)
-
芸術の森小学校徒歩27分(2,100m)
-
常盤中学校徒歩24分(1,900m)
-
ときわみなみのこどもえん徒歩10分(750m)
物件概要
- 所在地/札幌市南区常盤6条2丁目103-101(区画 №67)
- 交通①/中央バス「常盤6条2丁目」停 徒歩7分、バス乗車16分…地下鉄南北線「真駒内」駅
- 交通②/地下鉄南北線「真駒内」駅 車14分
- 学区/芸術の森小学校:徒歩27分(2,100m)、常盤中学校:徒歩24分(1,900m)
- 地目/宅地
- 用途地域/第1種低層住居専用地域
- 建ぺい率/50%
- 容積率/80%
- 道路/8mアスファルト舗装
- 私道負担/なし
- 建物構造/木造2階建(2x4工法)
- 間取り/2LDK(LDK:18.5帖、主寝室:7.18帖、洋室:6帖)
- 設備/電気:北海道電力(株)、ガス:集中プロパン、上下水道:札幌市営上下水道
- 販売棟数/1棟
- 建築確認番号/R07A-KSC.A01292-01
- 情報登録日/2026年4月6日
- 建物完成/2026年7月30日
- 販売開始日/2026年4月10日
- 引渡し可能時期/相談
- 取引態様/売主