しまう場所に困らない、整う暮らし
桜木1丁目のモデルハウス【建築中】
[NEW]
| モデルハウス名 | Almere アルメレ |
|---|---|
| 所在地 | 千歳市桜木1丁目971-43(住居表示:3番地内) |
| 販売価格(税込) | 3,960万円 |
| 毎月のお支払い例 | 月々82,939円 ■借入金額3,960万円、頭金なしの場合 |
- みらいエコ
- ダブル断熱
- 床暖房
- トリプルガラス
- エミネル
モデルハウス見学予約
当日の見学希望は担当者確保のため、お電話からのみご予約が可能です。
営業時間/9:00 ~18:00 休業日/水曜日、木曜日、2026年5月12日(火)
モデルハウスの資料がほしい方はこちら
Photo
ピックアップ写真紹介
Point
ポイント
≪閑静な住宅街でゆったり暮らす≫
・JR千歳線「長都」駅 徒歩21分!
・都市ガスで経済的♪
・駐車2台可
≪快適な生活を送れる充実の設備や間取り≫
・S.CLO完備
・LDKと玄関は床暖房
・トリプルサッシ&ダブル断熱で断熱性能アップ
・2階全部屋W.I.CLO付き
・2階トイレ
※『みらいエコ住宅2026事業』補助金40万円対象
仕様・設備
-
ダブル断熱(ネオマフォーム30mm)内断熱にプラスして、外張り断熱を組み合わせた『ダブル断熱』。 外張り用の断熱材は、業界トップクラスを誇る熱伝導率が0.020W/(m・K)のネオマフォームを採用しています。 ダブル断熱にする事で夏の暑さも冬の寒さも影響を受けにくく、光熱費の節約にも繋がります。 -
LDK 温水ガス床暖房まるで陽だまりのような温かさで、足元からじんわりと温めてくれる床暖房。風当たりがない為、ほこりが舞ったり乾燥もしにくいメリットがあります。また、暖房器具を置かなくて済むので、お掃除の手間が省け、更に室内は自由に広々使えて快適です。 -
世界トップクラスの断熱性能!『トリプルガラス』高性能トリプルガラス窓を採用。 ペアガラスに比べ年間暖房費を約2万円節約出来ます。 -
エネルギーマネジメントシステム『エミネル』『エミネル』とは、最新のIoT技術で暖房をコントロールする、エネルギーマネジメントシステムです。 マルチセンサーで計測した住環境データをもとに、暖房運転をコントロールしたり、アプリでエネルギーの使用量や省エネアドバイスなどを通知。暮らしに合わせた暖房コントロールやアドバイスで、ムリのない省エネをサポートしてくれます。 -
鋼製ラチス梁『セラフレーム』基礎間を橋の様に架け渡すようにして施工する梁。地中杭の本数削減と工期短縮が可能で、建物のコストダウンに繋がります。 地盤沈下が起きた場合でも、セラフレーム使用下では影響を受ける事がありません。 -
パナソニック製ビルトイン食洗機(ミドルタイプ)約4~5人分の、40点前後の食器が一度に洗える食器洗い乾燥機。 ガンコな油汚れやネバネバ、べとべとした汚れもスッキリ洗い落とせ、手で洗いにくいザルなど細かい部分も得意です。手洗いではできない清潔さで、安心に洗い上げることができます。 -
タッチレス蛇口一体型浄水器『LC』センサーで反応するので、濡れていたり汚れた手で水栓に触る必要がなく、清潔を保つことが出来ます。水栓まわりの水垂れも軽減され、お手入れの手間も省けます。また、こまめな止水が楽に行え、節水にも繋がります。 -
省エネ型ガス給湯器『リンナイ製エコジョーズ』少ないガス量で効率よくお湯を沸かす省エネ性の高い給湯器『エコジョーズ』は標準仕様です。 効率がアップすると、ガスの消費量が少なく済むので、環境にやさしく、ガス料金の節約にもつながります。従来のタイプに比べ、年間で約18100円のガス代が節約になります!
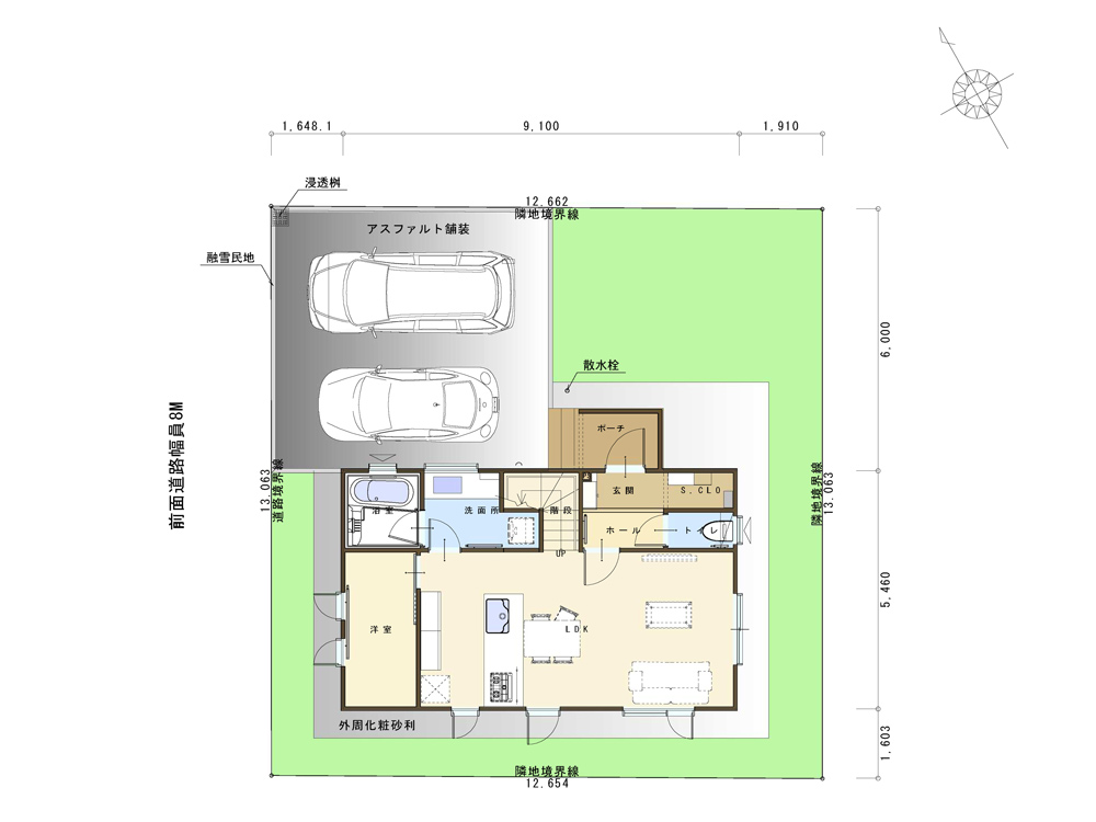
面積・間取り
マップ・アクセス
所在地:
千歳市桜木1丁目971-43(住居表示:3番地内)
交通機関:
JR千歳線「長都」駅 徒歩21分
中央バス「桜木1丁目」停 徒歩4分、バス乗車25分…JR千歳線「千歳」駅
中央バス「桜木1丁目」停 徒歩4分、バス乗車31分…「新千歳空港」
JR千歳線「長都」駅 徒歩21分
中央バス「桜木1丁目」停 徒歩4分、バス乗車25分…JR千歳線「千歳」駅
中央バス「桜木1丁目」停 徒歩4分、バス乗車31分…「新千歳空港」
周辺環境
-
周辺マップJR千歳線「長都」駅 徒歩21分(1,680m)
-
ローソン 千歳上長都店徒歩10分(750m)
-
業務スーパー 千歳店徒歩11分(850m)
-
ランドブレイン千歳モール徒歩14分(1,100m)
-
ちとせモール車7分(2,200m)
-
ツルハドラッグ 千歳新富店車6分(2,300m)
-
ドン・キホーテ 千歳店車6分(2,000m)
-
北斗内科・小児科車4分(1,400m)
-
桜木1号公園徒歩1分(39m)
-
勇舞さわやか公園徒歩6分(450m)
-
桜木小学校徒歩8分(640m)
-
北斗中学校徒歩18分(1,400m)
-
学校法人富士学園 千歳わかば幼稚園車5分(1,500m)
-
ひよこ保育園車7分(2,300m)
物件概要
- 所在地/千歳市桜木1丁目971-43(住居表示:3番地内)
- 交通①/JR千歳線「長都」駅 徒歩21分
- 交通②/中央バス「桜木1丁目」停 徒歩4分、バス乗車25分…JR千歳線「千歳」駅
- 交通③/中央バス「桜木1丁目」停 徒歩4分、バス乗車31分…「新千歳空港」
- 学区/桜木小学校:640m(徒歩8分)、北斗中学校:1,400m(徒歩18分)
- 地目/宅地
- 用途地域/第1種低層住居専用地域
- 建ぺい率/40%
- 容積率/60%
- 道路/8mアスファルト舗装
- 私道負担/なし
- 建物構造/木造2階建(2x4工法)
- 間取り/4LDK(LDK:16帖、1階洋室:4帖、主寝室:7.2帖、洋室A:6帖、洋室B:6.1帖)
- 設備/電気:北海道電力(株)、ガス:都市ガス、上下水道:公営上下水道
- 販売棟数/1棟
- 建築確認番号/R07A-KSC.A00793-01
- 情報登録日/2026年3月23日
- 建物完成/2026年8月5日完成予定
- 販売開始日/2026年4月3日
- 引渡し可能時期/相談
- 取引態様/売主